За оренду 0,3 га берегу стариці Ворскли запропонували 1,2 млн грн на рік
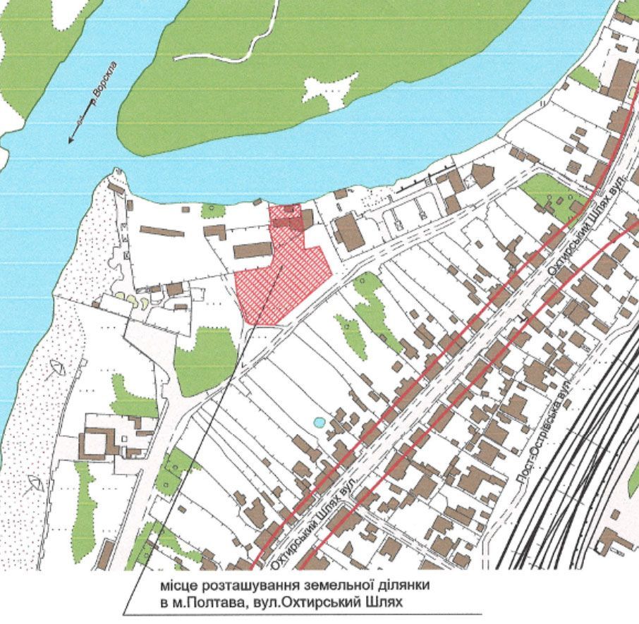
3 жовтня у системі Prozorro.Продажі відбувся аукціон із пошуку орендаря земельної ділянки рекреаційного призначення на вулиці Охтирський Шлях (Сакко). Йдеться про 0,3 га на березі стариці Ворскли, між базою відпочинку «Плесо» та оздоровчим центром «Зелений берег» Полтавського автоагрегатного заводу.

В аукціоні взяли участь вісім учасників. За три раунди вони підняли стартову річну орендну плату з 42 тис. грн до 1,2 млн грн.
| Учасник аукціону | Початкова пропозиція, грн | Фінальна пропозиція, грн |
| ФОП Андрій Грисенко | 100 000 | 1 200 000 |
| ТОВ «Енергополіграфдокумент» | 50 000 | 900 000 |
| Артур Зенько | 42 000 | 891 000 |
| ТОВ «ТРПВ» | 201 999 | 402 999 |
| ГО «Спілка ветеранів військової контррозвідки, ветеранів війни та учасників бойових дій» | 61 100 | 370 000 |
| ТОВ «Техпром Інтернешенел» | 89 001 | 295 100 |
| Наталія Величко | 83 000 | 100 000 |
| ТОВ «ІСпорт» | 53 000 | 53 000 |
Переможцем торгів став 43-річний полтавський підприємець Андрій Грисенко, який збільшив стартову ціну більш ніж у 28 разів. Уже п’ять років він надає різні інженерні послуги. За даними Prozorro, підприємець отримав від бюджетних установ щонайменше 13 замовлень на суму близько 350 тис. грн. Відповідно до даних YouControl, раніше мав стосунок до товариств «Ерфольг Груп», «Міланісто» та «Агро-Органік».
Організатор торгів — Полтавська міська рада — нині готує протокол результатів. Після цього з переможцем мають укласти п’ятирічний договір оренди.
Перед торгами «Полтавщина» отримала колективне звернення мешканців Дублянщини та Ліска, які просили не здавати в оренду всю ділянку біля стариці Ворскли. У південній її частині розташоване загальнодоступне футбольне поле «Гриша Арена».


Мешканці побоюються, що після передачі землі в оренду поле можуть забудувати, і громада втратить єдине місце для спорту та відпочинку. Деталі — у попередньому матеріалі.
Іван ШЕВЧЕНКО, «Полтавщина»